
Basement: 4 Bedrooms, 2.5 Bathrooms, Formal Office, Primary on 2nd Level, 3418 Finished Sqft
No Basement: 4 Bedrooms, 2.5 Bathrooms, 2 Car Garage, Primary on 2nd Level, 2404 Finished Sqft


Watch a high definition video walk through/guided tour of a previous Stafford Floor Plan we built in 2024!
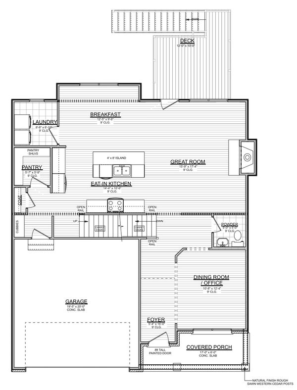
The main level features a formal dining room/office space, spacious laundry room, walk in pantry off the kitchen & a gorgeous fireplace in the great room.
Upstairs you'll find 4 LARGE bedrooms ALL with walk in closets! The primary is spectacular with 2 sinks, tiled walk in shower + a linen closet.
In the optional finished basement you will find a recreational room, office, full bathroom, and tons of storage space - both finished and unfinished!
Standard Features for Magnolia Pointe and Shiloh Cove 2025
Copyright © 2026 Payne Homes - All Rights Reserved.
We use cookies to analyze website traffic and optimize your website experience. By accepting our use of cookies, your data will be aggregated with all other user data.