
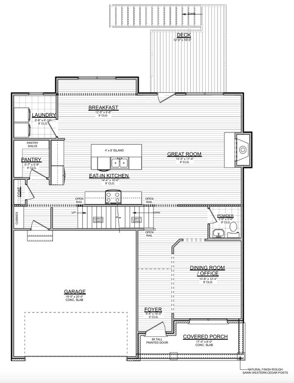
The Sheffield floor plan has 1,742 finished square feet with 4 bedrooms 2-1/2 bathrooms, and a 2-car garage.


The Sheffield Plan is a CLASSIC two story home featuring 4 bedrooms each with walk in closets on the second level. The main level features 9’ ceilings, open concept with the living room, kitchen and dining spaces, breakfast bar on the kitchen island.
Engineered wood flooring on the main level, stainless appliances, laundry room and half bath complete the main level. Upstairs the 2 bathrooms both have dual sinks.
The primary ensuite bathroom features a tiled walk in shower with fiberglass floor and glass door.
Watch a high definition video walk through/guided tour of a previous SheffieldFloor Plan we built in 2024!
Standard Features for Magnolia Pointe 2025
Copyright © 2026 Payne Homes - All Rights Reserved.
We use cookies to analyze website traffic and optimize your website experience. By accepting our use of cookies, your data will be aggregated with all other user data.