
3 Bedrooms, 2 bathrooms with an optional bonus suite upstairs.


Watch a high definition video walk through/guided tour of a previous Merrick III (with bonus area) Plan we built in 2024!
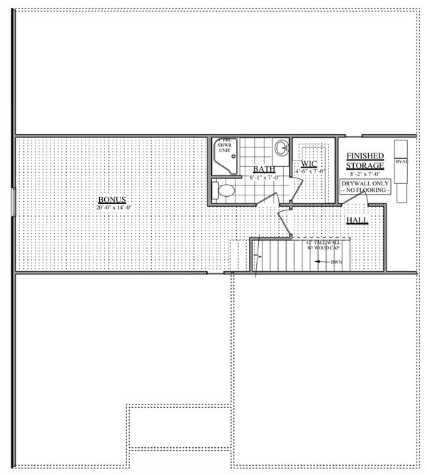
The Merrick III Plan is our model home for a reason! This open concept ranch plan features a bonus second level that boasts a 4th bedroom (or family room), 3rd full bathroom, walk in closet & walk in attic storage.
The main level is ideal for entertaining. The kitchen, dining and living areas are all open together and provide lots of flexibility when arranging your furniture. The kitchen has stainless appliances, granite counter tops, tiled back splash, pantry & breakfast bar.
The primary ensuite is nothing short of luxurious featuring a walk in closet, double bowl raised height vanity, tiled walk in shower w/glass door & linen closet. Additional bedrooms on the main level each have walk in closets.
Standard Features for Magnolia Pointe 2025
Copyright © 2026 Payne Homes - All Rights Reserved.
We use cookies to analyze website traffic and optimize your website experience. By accepting our use of cookies, your data will be aggregated with all other user data.