
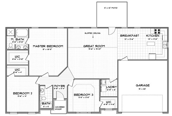
Main Level: 3 Bedrooms + 3 Full Bathrooms
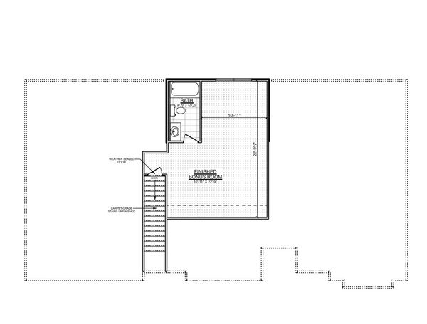
Upstairs: 4th Bedroom Option or Flex Space + 4th Full Bathroom
1st Floor: 1,758 SF - 2nd Floor Bonus: 471 SF - Total: 2,229 SF


Coming soon...
The Garrett II Plan is ideal for anyone who needs a spacious, split bedroom designed lay out w/3 ensuite beds/baths! The main level is wide open with gorgeous wood floors, gas logs fireplace, kitchen w/island + breakfast bar, & a generously sized laundry room. The main level primary ensuite is nothing but luxury w/2 sinks, trey ceilings, wood flooring in the bedroom, walk in closet, tiled walk in shower with glass door.
Upstairs can be used as your 4th bedroom/4th full bathroom ensuite or a flex room for an office, gym, play room... the possibilities are endless!
Standard Features for Magnolia Pointe 2025
Copyright © 2026 Payne Homes - All Rights Reserved.
We use cookies to analyze website traffic and optimize your website experience. By accepting our use of cookies, your data will be aggregated with all other user data.