
Basement: 5 Bedrooms, 3.5 Bathrooms, 3011 Finished, 2 Car Garage, Primary on 2nd Level
No Basement: 4 Bedrooms, 2.5 Bathrooms, 2 Car Garage, Primary on 2nd Level


Watch a high definition video walk through/guided tour of a previous Baxter Floor Plan we built in 2024!
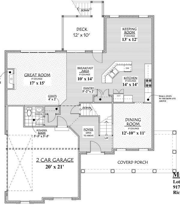
The main level features a wide open and flexible open concept. The kitchen has a breakfast bar and walk in pantry! Laundry & half bath complete this floor.
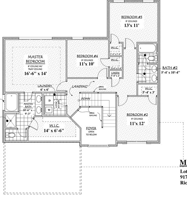
Upstairs you’ll notice how all 4 bedrooms have walk in closets. And the primary has dual walk in closets. The primary bath is also a dream featuring tiled walk in shower with fiberglass pan and glass door, dual sinks & a linen closet.
The lower level comes complete with a 5th bedroom, 3rd full bathroom, family room & storage space.
Standard Features for Magnolia Pointe 2025
Copyright © 2026 Payne Homes - All Rights Reserved.
We use cookies to analyze website traffic and optimize your website experience. By accepting our use of cookies, your data will be aggregated with all other user data.