
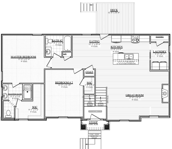
Main Level: Raised Ranch with 2 Bedrooms, 2 Full Bathrooms - 1,436 sq ft
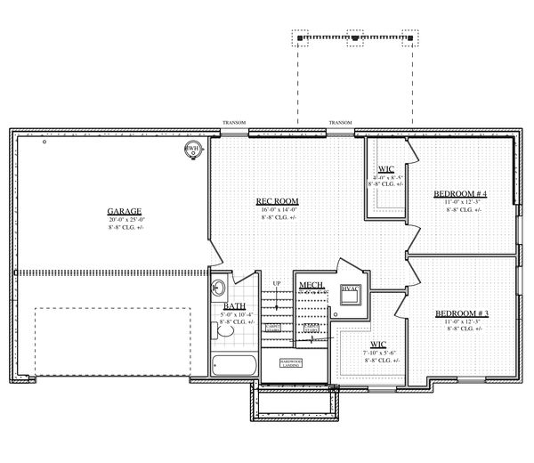
Finished Basement: 2 Bedrooms, 1 Full Bathroom - 867 sq ft
2,303 square feet of finished living space


The main level features a wide open and flexible open concept. The kitchen has a breakfast bar + island, primary ensuite, bedroom, full bathroom and fireplace in the great room! Laundry room plus pantry complete this level.
Downstairs you'll love the oversized 2 car garage, 2 additional bedrooms, full bathroom, family room and mechanical room.
Copyright © 2026 Payne Homes - All Rights Reserved.
We use cookies to analyze website traffic and optimize your website experience. By accepting our use of cookies, your data will be aggregated with all other user data.